305-283-9904

Swimming Pools

The pinnacle of backyard enjoyment.


Miami-Dade County Pool Construction

Abascal Pools is fully licensed and qualified to construct an in-ground pool on your property in Miami-Dade County. We also have experience working in some of the most particular districts in the area that have additional code requirements above and beyond Miami-Dade building code. Abascal Pools can also assist with designing the poolscape of your dreams. Once a plan is in place, we construct it with the same level of precision that goes into all of our work. We want to create a backyard oasis that you and your family, friends and neighbors can enjoy for decades!

If you have an existing pool that needs renovation, we are experts in developing creative solutions that breathe new life into your outdated poolscape. Call us and let our experts explain the many affordable options you have for a dramatic pool transformation. Be sure to ask about the many "smart features" that can be built into your pool system, including remote controlled lighting, jets, water features, temperature, etc.

Pool Design


Abascal Pools has hundreds of pool designs that have been successfully constructed. Our portfolio spans many sizes, styles, and budgets. Our collective experience will be put to work on your project as you plan and design a poolscape that meets your style and budget. In some cases, a client brings us a pool design from their architect or landscape designer and we will bid on construction in. In other situations, a homeowner may not yet have a plan. No worries—we can help. Our team has experience putting together beautiful poolscapes, and we also have a vast network of design professionals we can refer you to.

Below are just a few of the most recent pool designs we've constructed.

New Pool Construction Process

Design & Preparation

The Abascal Pools team will walk you through the building process and answer your questions about owning a swimming pool. If you already have architectural plans, we can quickly get to work on estimating and material selection. If you do not have a construction plan, we can help put your ideas on paper as we work together to design a poolscape that meets your needs. This is often a multi-step process, with numerous design refinements based on client feedback.

Excavation & Framing

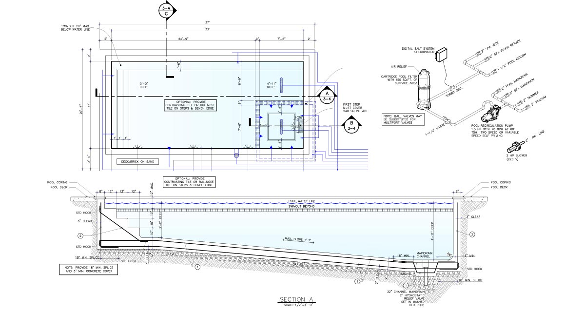
Upon completion of your design, we will stake out the project and begin the process of excavating the pool site and preparing the land for construction. Once the hole has been dug, we will use wood and steel rebar to help with the formation of the pool walls and pool bottom. The steel serves as a skeleton that will help reinforce the formed concrete. Gunite pools are designed to last for many decades.

Plumbing & Electrical

Once the steel wireframe is in place, our licensed plumbers and electricians will lay the PVC pipe, electrical conduit and wiring, as well as prepare the main drain and skimmer boxes. We recommend the most efficient equipment on the market, which will keep your pool clean and help reduce operating costs.

Gunite & Equipment

Gunite is a special blend of concrete that is sprayed under high pressure to bind tightly around the steel. It is built up in layers and will slowly reveal the final shape of the pool. Plaster manufacturers recommend a minimum 4 week curing time before plaster is applied to new gunite. As the gunite cures, Abascal Pools will continue to work on installing the filtration system, tile, etc.

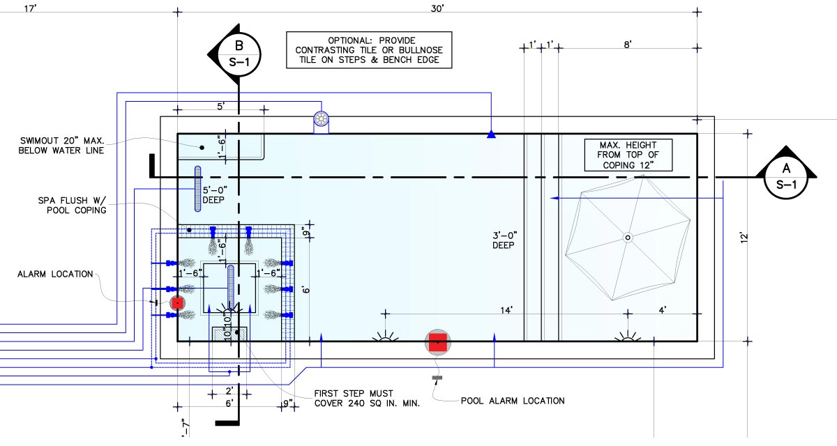
Pool Coping

Pool coping is the top edge around the pool that is walked on. It's often made with concrete pavers or sawn stone, but some designs call for concrete, brick, flagstone, travertine, or other exotic pool coping materials. You have lots of options as far as coping materials and we are there to help guide you on the best decision for your project.

Deck & Plaster

After the coping has been laid, it's time to complete the pool deck surface and plaster the inside of the pool. Our pool experts will decide which should come first depending on material availability as well as your deck material. Plastering a pool is one of the last steps, and it's best to start filling the pool with water upon completion of the plaster setting. At this time, the finish must cure.

Start-up & Chemicals

Most manufacturers recommend letting the pool plaster finish curing for 30 days before adding salt, so Abascal Pools recommends a traditional chlorine start-up for the first month of service. We'll balance the pool water for you, add all appropriate chemicals, and also brush the surfaces according to the manufacturers recommendations. If you've installed a saltwater system, we'll switch over when the time is right.

Recently Completed Pools


Start Planning Your Project

Pools


Lounge Areas


Many pools are now built with shallow lounge areas that serve as the perfect place to relax in the water and catch some rays. Seating can also be added to the edge in deeper water to maximize comfort.

Fountains & Waterfalls


A cascading rock water feature or fountains that spring forth from your pool deck are a great way to enhance your pool. Some have even built a natural stone sliding rock that provides added fun for kids.

Coping Materials


There are many pool coping options, including concrete pavers, brick pavers, poured concrete, sandstone, travertine, and other natural stones. Coping is the surface that immediately surrounds the pool edge.

Pool Surfaces


A traditional white plaster pool will reflect the sky and give off a classic, azure color. New, tinted plasters as well as pool surfaces impregnated with aggregates and glass are new ways to change or deepen the color of the water, from deep blues to lagoon greens.

Deck Surfaces


Pools decks can be any number of materials, including wood, stone, concrete, pavers, bricks, or even a natural turf surface. Our designers will help you choose the perfect pool deck surface that matches its surroundings.

Hot Tubs


Hot tubs add to the overall pool experience, providing a warm place for bathers to relax. A hot tub can be a standalone unit, or can be integrated with the rest of the pool—even cascade into the pool water below!

Let's Work Together

We invite you to reach out for a free consultation. Our team is here to answer questions and help make your pool project a reality!

Inquire Here